TBM crane TBM crane TBM crane TBM crane TBM crane TBM crane TBM crane TBM crane TBM crane TBM crane TBM crane TBM crane TBM crane

起重机端梁

首页 / 产品 / 起重机端梁 / 起重机端梁

起重机端梁

产品

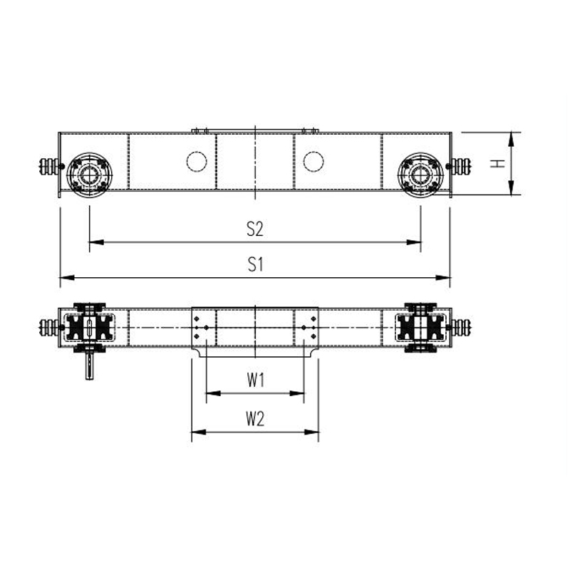
起重机端梁是起重机结构的重要组成部分之一。它是起重机桥系的一部分。其主要作用是承载起重机的行走机构,支撑起重机的整体运行。起重机端部车厢承受着整个起重机桥架系统的载荷、起重机自身的重量和载荷的重量。具有足够的承载能力和稳定性,确保起重机在运行过程中不会变形或损坏。该起重机端架与轨道、车轮系统配合,使起重机沿轨道平稳、准确地运行。它的设计必须保证车轮和轨道之间的良好接触。支撑起起重机的动力驱动系统和控制系统。运行时,起重机的行走机构、驱动电机等设备固定在端梁上。在端梁上设计了一些保护结构,以保护起重机内部电气系统、机械系统等不受外界环境的影响。

  • 规格
  • 关于双鸟
  • 联系我们
型号 适应起重机 方管规格 车轮规格 马达型号
(30m/min)
S1 (mm) S2 (mm) W1 (mm) W2 (mm) H (mm)
UL125-15 3.2t-7.5m 150x200x8 U125x60 FA27-0.55kW-73 1500 1280 400 550 212.5
UL125-20 3.2t-11.5m 2000 1780 400 550 212.5
UL125-25 3.2t-16.5m 2500 2280 400 550 212.5
UL125-30 3.2t-22.5m 3000 2780 500 650 212.5
UL125-35 3.2t-28.5m 3500 3280 600 750 212.5
UL160-15 6.3t-7.5m 150x250x8 U160x70 FA37-0.75kW-60 1500 1200 400 550 270
UL160-20 6.3t-11.5m 2000 1700 400 550 270
UL160-25 6.3t、-16.5m 2500 2200 400 550 270
UL160-30 6.3t-22.5m 3000 2700 500 650 270
UL160-35 6.3t-28.5m 3500 3200 600 750 270
UL200-20 12.5t-11.5m 200x300x10 U200x70 FA47-1.1kW-48 2000 1700 500 650 320
UL200-25 12.5t-16.5m 2500 2200 500 650 320
UL200-30 12.5t-22.5m 3000 2700 600 750 320
UL200-35 12.5t-28.5m 3500 3200 600 750 320
UL250-20 16t-11.5m 200x400x10 U250x90 FA57-1.5kW-39 2000 1600 500 650 425
UL250-25 16t-16.5m 2500 2100 600 750 425
UL250-30 16t-22.5m 3000 2600 600 750 425
UL250-35 16t-28.5m 3500 3100 700 850 425
UL315-30 20t-16.5m 200x400x10 U315x90 FA67-2.2kW-32 3000 2500 600 750 430
UL315-35 20t-22.5m 3500 3000 600 750 430
UL315-40 20t-28.5m 4000 3500 700 850 430
浙江双鸟起重设备有限公司是一家专业从事电动葫芦研发、生产、营销及售后服务于一体的特种设备企业。公司自成立以来非常重视新品研发与技术创新,一直以高起点、高配置专注于电动葫芦的研发,在不断引进国外先进技术的同时,积极展开新款欧式电动葫芦的研发,建立了以“创新推动未来,专注成就精彩”的核心理念,成为国内电动葫芦发展的风向标,推动着国内电动葫芦行业的发展。
公司主营SHA8、SHA7及SHH三大系列欧式高性能电动葫芦及起重相关配件,年产销量达8000余台,并且逐年增长。产品在国内外市场上赢得了“欧洲品质、中国价格”、“安全耐用、双鸟起重”等良好的业界口碑。近年来,为满足特殊行业用户对新款欧式电动葫芦的渴望,公司积极组织调研,针对特殊行业的应用需求,先后研发了船舶、核电、水电、风电、冶金及化工等行业专用的欧式电动葫芦,一经推出即得到客户赞赏,给予“外观新颖、结构紧凑、性能可靠、节能环保”等荣誉。
双鸟起重始终以客户利益为中心而不懈努力,不断推出新型高效、节能环保的产品,打造优良品质,秉承“百年双鸟、葫芦经典”的伟大愿景,全力打造轻小型起重设备行业标杆品牌—TBM。
关于我们
浙江双鸟起重设备有限公司

浙江双鸟起重设备有限公司是一家专业从事电动葫芦研发、生产、营销及售后服务于一体的特种设备企业。公司自成立以来非常重视新品研发与技术创新,一直以高起点、高配置专注于电动葫芦的研发,在不断引进国外先进技术的同时,积极展开新款欧式电动葫芦的研发,建立了以“创新推动未来,专注成就精彩”的核心理念,成为国内电动葫芦发展的风向标,推动着国内电动葫芦行业的发展。
公司主营SHA8、SHA7及SHH三大系列欧式高性能电动葫芦及起重相关配件,年产销量达8000余台,并且逐年增长。产品在国内外市场上赢得了“欧洲品质、中国价格”、“安全耐用、双鸟起重”等良好的业界口碑。近年来,为满足特殊行业用户对新款欧式电动葫芦的渴望,公司积极组织调研,针对特殊行业的应用需求,先后研发了船舶、核电、水电、风电、冶金及化工等行业专用的欧式电动葫芦,一经推出即得到客户赞赏,给予“外观新颖、结构紧凑、性能可靠、节能环保”等荣誉。
双鸟起重始终以客户利益为中心而不懈努力,不断推出新型高效、节能环保的产品,打造优良品质,秉承“百年双鸟、葫芦经典”的伟大愿景,全力打造轻小型起重设备行业标杆品牌—TBM。

新闻
  • 电动钢丝绳葫芦是工业起重设备领域的重要工具,广泛应用于各类重型起吊作业。该设备通过电动驱动系统控制钢丝绳,实现负载的精准升降与平稳运行,以高效、安全的特性赢得行业青睐。 与链式葫芦相比,电动钢丝绳葫芦的优势在于承载能力更强、耐用性更高。其钢丝绳结构具备出色的抗拉强度和耐磨性,能够胜任更大吨位及高频次的工业应用。 目前,这类设备被广泛应用于建筑工地、制造工厂、仓储物流及其他重型作业场景。双鸟电动钢丝...

    查看更多
  • 在当今快节奏的工业时代,效率与安全始终是企业运营的两大核心目标。事实证明,钢丝绳提升系统在实现这两方面目标上具有不可替代的价值。作为现代起重设备的重要组成部分,这类系统以卓越的性能和多功能性广泛应用于各类工业场景,极大地提升了生产效率与安全水平。 一、增强的起重能力 钢丝绳提升系统最突出的优势之一是其强大的起重能力。凭借坚固的结构与优异的承载性能,它们能够轻松应对重型物料、机械设备及成品的搬运任务...

    查看更多
  • 引言 工业起重机在各行各业中都扮演着至关重要的角色,是实现重物搬运与物料输送的核心设备。它们广泛应用于制造工厂、仓储物流和建筑工地等场景,旨在提升作业效率并确保操作安全。深入了解不同类型的工业起重设备及其应用场景,对于提高生产效率与安全水平具有重要意义。 一、工业起重机的主要类型 工业起重机种类多样,不同型号针对特定的起重需求而设计。常见类型包括: 电动葫芦:由电机驱动,适用于高频率、重负载的起吊...

    查看更多
  • 引言 电动葫芦是现代工业中不可或缺的起重设备,为各类场景提供高效、安全的物料搬运解决方案。凭借电力驱动,它能轻松完成重物的提升与移动,显著降低工人劳动强度、提升生产效率。与依靠人力操作的手动葫芦相比,电动葫芦实现了起重过程的自动化,尤其适用于高频率、重负载或大体积物品的作业场景。 一、起重性能 电动葫芦的优势在于强大的承载能力与稳定的工作性能。根据不同型号与配置,电动葫芦可提升数百公斤至数吨的负载...

    查看更多
起重机端梁行业知识